Not By Bed Alone
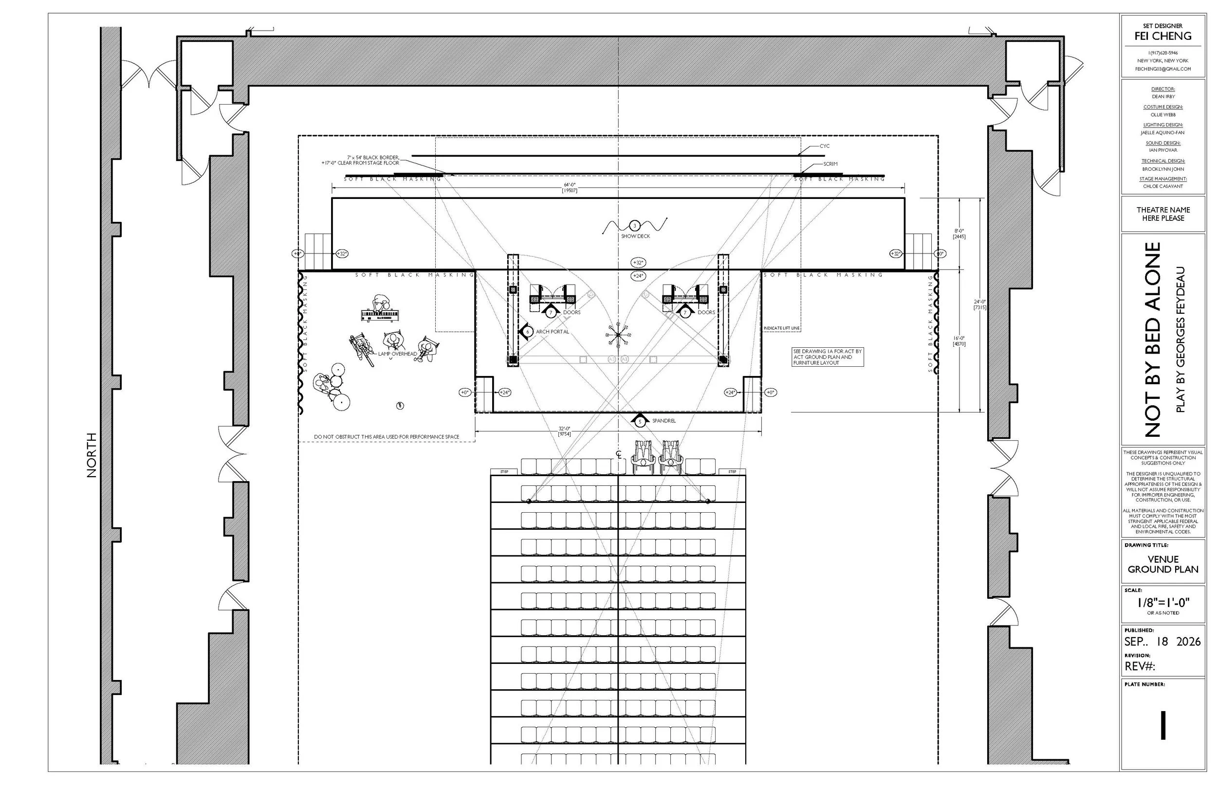
Abbot Kaplan-Rep Theatre, Purchase College at SUNY
Abbot Kaplan-Rep Theatre, Purchase College at SUNY